
BOSA 027
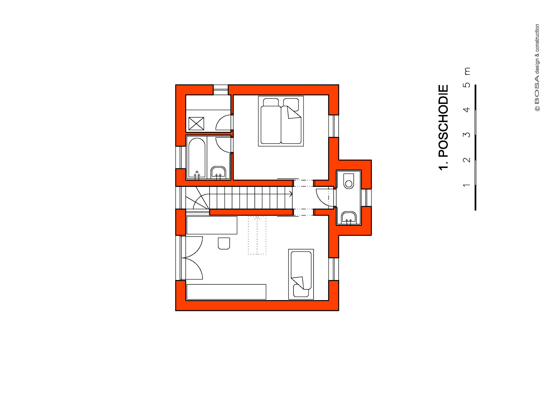
obytné miestnosti 3
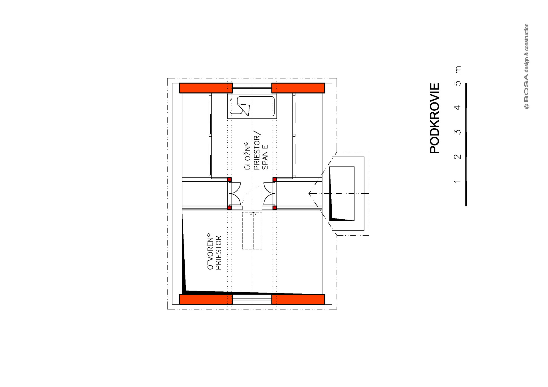
priestor v podkroví môže byť využitý ako ďaľšia ( štvrtá ) miestnosť, prípadne to môže byť užitočný úložný priestor, alebo oboje
kúpeľne 2
suterén nie








obytné miestnosti 3
priestor v podkroví môže byť využitý ako ďaľšia ( štvrtá ) miestnosť, prípadne to môže byť užitočný úložný priestor, alebo oboje
kúpeľne 2
suterén nie






